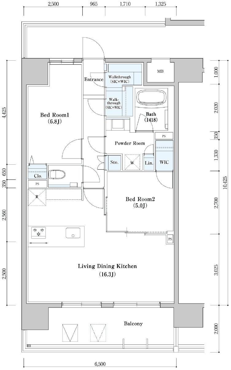
収納力の高いWIC・SICや、
やさしい光に包まれる間接照明キッチン、
約2mの奥行を確保したバルコニーなど、
日常がちょっと整うこだわりを随所に。
自分らしく軽やかに暮らせる間取りが
揃っています。
Equipment
設備仕様
-

- 便利なハンズフリー解錠
- エントランス、エレベータ、各戸住居まで鍵を出さずにハンズフリーで入る事ができます。
-

- NURO光Connect 利用料無料
- 入居者様は高速インターネットが無料で使用可能!月々のランニングコストが抑えられるうれしい設備。テレワークや動画視聴、オンラインゲームなど、ストレスなく快適に利用できます。
-

- SONY マルチファンクションライト
- 照明の調光・調色はもちろん、高音質スピーカー、人感センサー、家電操作、みまもり機能を備えた多機能ライトです。スマホを使わず、スマートコントローラーで簡単操作。
-

- 食器洗い乾燥機・グースネック水栓
- 家事を効率化する食器洗い乾燥機と、使いやすく洗い物がしやすいグースネック水栓を採用。清潔で快適なキッチン環境を実現します。
-

- システムキッチン
- (A・Bタイプ:ガスコンロ2口)
(Cタイプ:ガスコンロ3口
-

- ペット飼育可
- ペット足洗い場やペットボタン付きのエレベーターも備わっています。
※小型犬1匹又は猫2匹まで ※敷金1ヶ月積増
-

- 玄関のエコカラット、ニッチ
- 玄関に調湿・脱臭機能のあるエコカラットを採用しており、玄関の快適性向上しております。また、壁面には鍵や見せる小物を置けるニッチを設置しています。
-

- Walk-through(SIC×WIC)
- 靴・衣類のほか、ゴルフバックや釣り道具などの大型アイテムまで一括収納。玄関からのスムーズな導線を最適化しました。
共用部
-
TVモニター付インターホン -
オートロック -
宅配BOX -
防犯カメラ -
エレベーター -
駐車場
(有料 ※要空き確認) -
バイク置き場
(有料 ※要空き確認) -
駐輪場
(無料 ※要空き確認) -
ペット飼育可
(小型犬1匹・猫2匹まで) -
ペット足洗い場 -
高速インターネット無料 -
ハンズフリーキー
専有部
-
ウォークインクローゼット -
シューズインクローゼット
(A・Bタイプのみ) -
追焚機能 -
浴室乾燥機能 -
独立洗面化粧台 -
温水洗浄便座 -
エアコン(リビング実装) -
グリル -
ペアガラス -
食器洗い乾燥機